Nordisches Urlaubs- und Lebensgefühl – Ferienhaus im skandinavischen Stil nahe dem Meer!
DATEN IM ÜBERBLICK
Nutzungsart:
Wohnen
Vermarktungsart:
Verkauf
Objektart:
Haus
Objekttyp:
Ferienhaus
Objektinformationen
Kaufpreis:
289.000,00 €
Provision:
provisionspflichtig!
Käuferprovision:
2,98% inkl. MwSt
Hauptkriterien
Nutzfläche:
73,10 m²
Grundstück:
300,00 m²
Energiepass
Energiepass Art:
Verbrauch
gültig bis:
30.10.2035
Energieverbrauch:
75,20 kWh/(m²a)
Primärenergieträger:
Strom
Ausstelldatum:
30.10.2025
Erstellungsdatum:
2014
Ausstattung
Ausstattung
STANDARD
Tageslichtbad
✓
Dusche
✓
Einbauküche
✓
offene Küche
✓
Fliesenboden
✓
Kamin
✓
Zentralheizung
✓
Elektrobefeuerung
✓
Befeuerung mit Holz
✓
Gartennutzung
✓
Süd-Westbalkon bzw. Terrasse
✓
Kabel / Sat / TV Empfang
✓
Sauna
✓
Abstellraum
✓
Satteldach
✓
Holzbau
✓
Zustand
Baujahr:
1997
Erschließung:
Strom
Daten zum Objekt
Wir bieten Ihnen im Ostseebad Boltenhagen ein komfortabel eingerichtetes Ferienhaus an. Das im skandinavischen Stil erbaute Ferienhaus wurde im Jahr 1997 in Holzbauweise errichtet und befindet sich in Randlage des "Regenbogen-Camp" Areals. Das modern ausgestattete Ferienhaus bietet ideale Voraussetzungen für einen entspannten Aufenthalt/ Urlaub mit bis zu sechs Personen. Die durchdachte Raumaufteilung, kombiniert mit zahlreichen Modernisierungen, schafft ein modernes und zugleich gemütliches Wohnambiente.
Das Ferienhaus wurde in den Jahren 2021/ 2022 umfassend modernisiert. Das Badezimmer präsentiert sich in zeitgemäßem Design und neuem Ausstattungsstandard. Der Kamin entspricht den aktuellen gesetzlichen Vorschriften und sorgt in der kühleren Jahreszeit für behagliche Wärme. Die Küche wurde mit neuen Elektrogeräten ausgestattet (Einbau 2021/ 2022) und bietet somit modernen Komfort für die Selbstversorgung.
Auch im Außenbereich überzeugt das Haus: die in Süd-/ Westausrichtung umlaufende Terrasse bis hin zum Eingangsbereich wurde erneuert und lädt zu entspannten Stunden im Freien ein.
Das gesamte Ferienhaus wurde in den Jahren 2021/ 2022 neu möbliert, insbesondere das Kinder- bzw. Gästezimmer ist mit neuen Möbeln ausgestattet.
Das ausgebaute Dachgeschoss mit Galeriebereich und abgeteiltem Schlafbereich (ausgestattet mit 2 Einzelbetten, TV und Stauraum in den Abseiten) verleiht dem Grundriss des Hauses einen besonderen Charakter.
Das Haus verfügt über einen direkt am Gebäude angelegten Pkw-Außenstellplatz sowie einen separaten Abstellraum für die mögliche Unterbringung von Fahrrädern, Holz für den Kamin und/ oder Strandutensilien.
Insgesamt verbindet dieses Ferienhaus modernen Wohnkomfort mit einer familienfreundlichen Ausstattung. Die Kombination aus naturnaher Lage, umfangreicher Infrastruktur und vielseitigen Freizeit- und Erholungsmöglichkeiten macht das Regenbogen-Camp Boltenhagen zu einem attraktiven Standort für Familien, Paare und Ruhesuchende gleichermaßen.
Das Ferienhaus wurde in den Jahren 2021/ 2022 umfassend modernisiert. Das Badezimmer präsentiert sich in zeitgemäßem Design und neuem Ausstattungsstandard. Der Kamin entspricht den aktuellen gesetzlichen Vorschriften und sorgt in der kühleren Jahreszeit für behagliche Wärme. Die Küche wurde mit neuen Elektrogeräten ausgestattet (Einbau 2021/ 2022) und bietet somit modernen Komfort für die Selbstversorgung.
Auch im Außenbereich überzeugt das Haus: die in Süd-/ Westausrichtung umlaufende Terrasse bis hin zum Eingangsbereich wurde erneuert und lädt zu entspannten Stunden im Freien ein.
Das gesamte Ferienhaus wurde in den Jahren 2021/ 2022 neu möbliert, insbesondere das Kinder- bzw. Gästezimmer ist mit neuen Möbeln ausgestattet.
Das ausgebaute Dachgeschoss mit Galeriebereich und abgeteiltem Schlafbereich (ausgestattet mit 2 Einzelbetten, TV und Stauraum in den Abseiten) verleiht dem Grundriss des Hauses einen besonderen Charakter.
Das Haus verfügt über einen direkt am Gebäude angelegten Pkw-Außenstellplatz sowie einen separaten Abstellraum für die mögliche Unterbringung von Fahrrädern, Holz für den Kamin und/ oder Strandutensilien.
Insgesamt verbindet dieses Ferienhaus modernen Wohnkomfort mit einer familienfreundlichen Ausstattung. Die Kombination aus naturnaher Lage, umfangreicher Infrastruktur und vielseitigen Freizeit- und Erholungsmöglichkeiten macht das Regenbogen-Camp Boltenhagen zu einem attraktiven Standort für Familien, Paare und Ruhesuchende gleichermaßen.
Lage
Nur einen Steinwurf von Lübeck, Hamburg, Schwerin und Wismar entfernt liegt das zweitälteste Ostseebad Deutschlands: Boltenhagen. Bereits 1803 von der Familie Bothmer als Badeort entdeckt, begeistert der Ort bis heute mit seinem 4,5 Kilometer langen Sandstrand. Parallel zum Meer verlaufen die Mittel- und Strandpromenade, gesäumt von liebevoll restaurierten Villen in klassischer Bäderarchitektur, charmanten Cafés und Restaurants. Auch der Kurpark sowie die 290 Meter lange Seebrücke, die weit in die Ostsee hineinragt, sind vom Objekt bequem fußläufig erreichbar.
Ganzjährig sorgen Konzerte, Festivals und Führungen für kulturelle Abwechslung. Aktivurlauber erkunden das abwechslungsreiche Umland per Rad – etwa die Naturschutzgebiete Tarnewitzer Huk und Klützer Winkel, die Felder entlang der Redewischer Steilküste oder historische Kirchen und herrschaftliche Gutshäuser. Weitere Freizeitangebote wie Nordic Cross Skating, Reiten, Schnuppertauchen in der Ostsee, Klettern im Kletterpark mit Ostseeblick oder SwinGolf bieten Unterhaltung für Groß und Klein.
Maritimes Flair erleben Skipper und Besucher in der Yachtwelt Weiße Wiek – einer modernen Marina mit rund 350 Liegeplätzen, Werft und zwei Hotels. Direkt daneben lädt der traditionelle Fischereihafen mit seinen Kuttern und roten Holzhütten zum Verweilen ein, wo fangfrischer Fisch genossen werden kann.
Die Ostsee ist gezeitenlos und damit jederzeit ideal zum Baden: Sanfte Wellen, breite Sandstrände, Feuer- und Bernsteinfunde sowie ein mildes, beständiges Klima machen Boltenhagen zu einem attraktiven Reiseziel zu jeder Jahreszeit.
Ganzjährig sorgen Konzerte, Festivals und Führungen für kulturelle Abwechslung. Aktivurlauber erkunden das abwechslungsreiche Umland per Rad – etwa die Naturschutzgebiete Tarnewitzer Huk und Klützer Winkel, die Felder entlang der Redewischer Steilküste oder historische Kirchen und herrschaftliche Gutshäuser. Weitere Freizeitangebote wie Nordic Cross Skating, Reiten, Schnuppertauchen in der Ostsee, Klettern im Kletterpark mit Ostseeblick oder SwinGolf bieten Unterhaltung für Groß und Klein.
Maritimes Flair erleben Skipper und Besucher in der Yachtwelt Weiße Wiek – einer modernen Marina mit rund 350 Liegeplätzen, Werft und zwei Hotels. Direkt daneben lädt der traditionelle Fischereihafen mit seinen Kuttern und roten Holzhütten zum Verweilen ein, wo fangfrischer Fisch genossen werden kann.
Die Ostsee ist gezeitenlos und damit jederzeit ideal zum Baden: Sanfte Wellen, breite Sandstrände, Feuer- und Bernsteinfunde sowie ein mildes, beständiges Klima machen Boltenhagen zu einem attraktiven Reiseziel zu jeder Jahreszeit.
Ausstattung
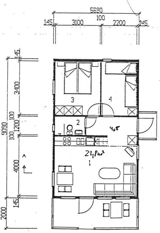
Erdgeschoss:
- Eingangsbereich
- Wohn-/ Esszimmer mit Kamin
- integrierte Einbauküche
- 2 Schlafzimmer
- Duschbad
- großzügige umlaufende Terrasse
ausgebautes Dachgeschoss:
- Galerie
- Schlafbereich
- Eingangsbereich
- Wohn-/ Esszimmer mit Kamin
- integrierte Einbauküche
- 2 Schlafzimmer
- Duschbad
- großzügige umlaufende Terrasse
ausgebautes Dachgeschoss:
- Galerie
- Schlafbereich
sonstige Angaben
- 1 Pkw-Außenstellplatz
- separater Abstellraum
- der Fußbodenbelag im Eingangsbereich, im Wohnzimmer mit integrierter Einbauküche ist ein hochwertiger Design-Line-Boden
- der Fußboden in den Schlafräumen und das moderne Duschbad ist gefliest
- im Galeriebereich sowie im Schlafbereich im ausgebauten Dachgeschoss wurde Linoleum verlegt
- für das Ferienhaus fällt eine jährliche Pacht von 2.613,24 Euro (netto) zzgl. gesetzliche Mehrwertsteuer an
- weitere anfallende Kosten: Strom, Wasser, Hausmeister, Grundsteuer, Kurabgabe, bei Zweitwohnnutzung fällt Zweitwohnsitzsteuer an
- bei Erwerb des Ferienhauses fallen keine Notar- und Gerichtskosten an
- der Verkaufspreis versteht sich zzgl. gesetzliche Mehrwertsteuer
- der Verkaufspreis versteht sich inklusive vorhandenes Mobiliar und Inventar und Pkw-Außenstellplatz
- separater Abstellraum
- der Fußbodenbelag im Eingangsbereich, im Wohnzimmer mit integrierter Einbauküche ist ein hochwertiger Design-Line-Boden
- der Fußboden in den Schlafräumen und das moderne Duschbad ist gefliest
- im Galeriebereich sowie im Schlafbereich im ausgebauten Dachgeschoss wurde Linoleum verlegt
- für das Ferienhaus fällt eine jährliche Pacht von 2.613,24 Euro (netto) zzgl. gesetzliche Mehrwertsteuer an
- weitere anfallende Kosten: Strom, Wasser, Hausmeister, Grundsteuer, Kurabgabe, bei Zweitwohnnutzung fällt Zweitwohnsitzsteuer an
- bei Erwerb des Ferienhauses fallen keine Notar- und Gerichtskosten an
- der Verkaufspreis versteht sich zzgl. gesetzliche Mehrwertsteuer
- der Verkaufspreis versteht sich inklusive vorhandenes Mobiliar und Inventar und Pkw-Außenstellplatz

